22 logements collectifs en FOB et 4 logements intermédiaires en MOB paille à Rennes
Rennes (35) _ Chantier

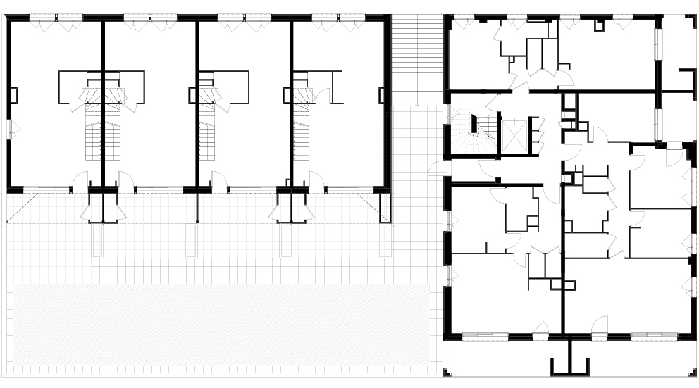
Le projet s’établit dans la 3ème tranche, secteur "Grande Prairie", de la ZAC de la Courrouze, conçue par le Studio Paola Vigano, au Sud-Ouest de Rennes, et se compose de 26 logements dont 4 intermédiaires.

Le parking, qui forme le soubassement des logements, est en béton lasuré couleur schiste, caractéristique de l’environnement proche. Une alternance d’ouvertures assure l’éclairage et la ventilation naturelles de toutes les parties communes. Un escalier extérieur de 3 mètres de large en béton crée une faille Nord-Sud entre les logements collectifs et intermédiaires, et permet l’accès à ces derniers.

Composés de duplex et triplex, ces logements intermédiaires, en MOB (mur à ossature bois) et isolation paille, bénéficient de plusieurs espaces extérieurs situés au Sud, dont un jardin d’agrément. Le bardage vertical bois douglas crée la finition extérieure des murs à ossature bois et isolation paille.

L’accès aux logements collectifs, en FOB (façade à ossature bois) se fait via une circulation verticale éclairée naturellement à tous les étages. Le bâtiment s’orne de loggias d’angles et d’une terrasse filante sur toute la façade Sud. En contraste au reste du projet, ses façades à ossature bois sont parées de bardage vertical bois prégrisé foncé.

Chaque logement dispose d’un espace extérieur privatif. Ceux situés au Sud sont équipés d’une casquette pour éviter les surchauffes estivales. Ils sont tous multi-orientés : traversants Nord-Sud voire triple orientée pour les logements intermédiaires, à minima bi-orienté pour tous les logements collectifs.

MAÎTRISE D'OUVRAGE
SO.RE.IM
PHASE
En cours
COÛT
NC
SURFACE TOTALE
2 014 m² SHAB
PROGRAMME
Construction de 22 logements collectifs et 4 logements intermédiaires
MAÎTRISE D'OEUVRE
Dumont Legrand Architectes
Ligne BE (BET structure)
SYMOE (BET fluides, thermique et environnement)
Cabinet Lemonnier (économiste)
Origami (BET paysage)
Acoustique Yver Hernot (BET acoustique)

Chef.fe.s de projet : Fleur Alliet, Baptiste Brenguier

Crédit image : Loto Archilab (perspectivistes)