Entre ville et nature
Un site exceptionnel, un morceau de nature en pleine ville ! Les bâtiments prendront place dans le massif forestier et offriront un cadre de vie privilégié aux futurs occupants. Parmi les enjeux majeurs du projet : garantir que cette masse végétale en centre-ville reste perceptible et profite à tous depuis l’espace public.
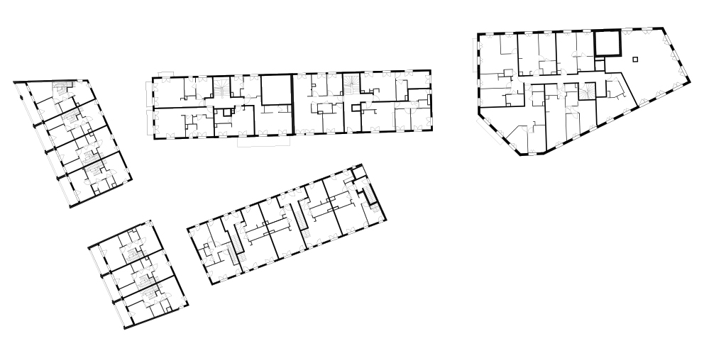
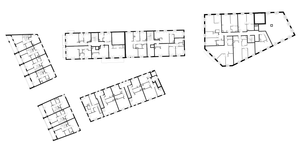
Créer du tissu
Les séquences de transition entre la ville et les espaces intérieurs de chaque logement seront au coeur de la convivialité du projet. Est "convivial" un espace harmonieux favorisant l’épanouissement collectif et individuel. Le projet organisé en plusieurs bâtiments entourant un coeur d’îlot très ouvert permet de créer un enchaînement de parcours profitant de la topographie, des vues sur le parc et de la forêt.
Pierre, chanvre et bois
Notre engagement écologique militant se traduit ici par le choix d’un procédé constructif mixte associant matériaux géosourcés et biosourcés : pierre massive, ossature bois et béton de chanvre. Cette conviction se retrouve dans d'autres projets que DLA réalise actuellement en terre, paille, bois et chanvre.