80 logements dans la ZAC Champ de Manœuvre à Nantes
Nantes (44) _ Études

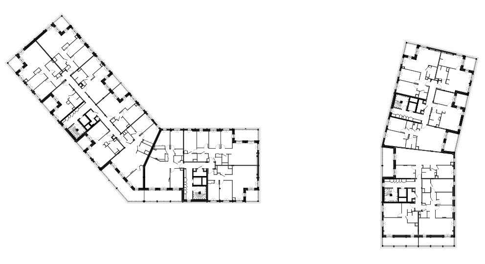
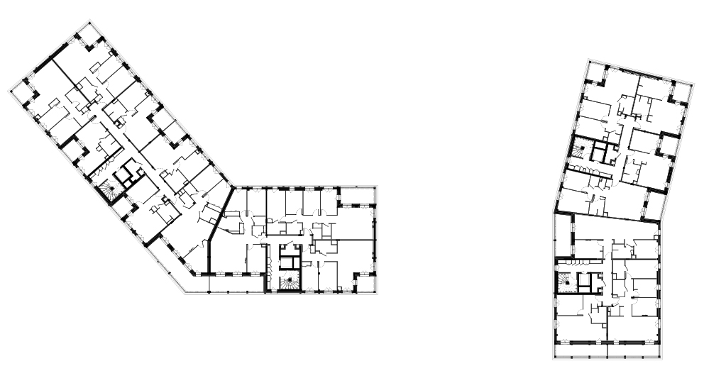
La ZAC Champ de Manoeuvre prend place sur un terrain militaire désaffecté, réinvesti par la nature et converti en havre de biodiversité. Ce contexte détermine l’implantation de nos deux bâtiments, pliés de telle sorte qu’ils épargnent les grands arbres existants. Pour préserver un maximum de pleine terre, les parkings sont positionnés dans les emprises bâties, en rez-de-chaussée et en sous-sol, tandis que les locaux vélos, portés par des pieux vissés, sont légèrement décollés du sol.
Les 80 logements du programme vont du T1 au T5. Chacun est équipé d’un espace extérieur privé particulièrement appréciable dans cet environnement arboré. La quasi totalité des lots sont multi-orientés pour favoriser la ventilation naturelle et bénéficier en hiver du meilleur apport solaire. La production de chaleur pour les deux bâtiments est assurée par une chaudière bois logée sous le bâtiment A.
Le risque sismique «modéré» (niveau 3) propre à la région appelle une structure béton particulièrement étudiée, notamment face à l’exigence de conserver des rez-de-chaussée ouverts et réversibles. Le projet vise néanmoins le niveau 2 bisourcé grace notamment à un important linéaire de façades à ossature bois assorties d’un isolant d’origine biosourcée, un bardage en mélèze prégrisé et un complexe toiture-charpente composé en grande partie de bois.

MAÎTRISE D'OUVRAGE
CISN
PHASE
En cours
COÛT
NC
SURFACE TOTALE
5 717 m² SDP
PROGRAMME
80 logements du T1 au T5 en accession libre et aidée + 80 places de parking + locaux vélos
MAÎTRISE D'OEUVRE
Dumont Legrand Architectes
Ligne BE (BET structure)
Inddigo (BET fluides, environnement)
Atelier Jours (paysagiste)
ECB (économiste)
Yves Hernot (acoustique)