Groupe scolaire dans la ZAC des Chanteraines à Gennevilliers
Gennevilliers (92) _ Études

Le quartier des Chanteraines aux activités historiquement « productives » se transforme en quartier mixte nécessitant de nouveaux équipements dont un groupe scolaire évolutif.

La construction de l’école dans une phase 1 et son extension en site occupé dans une phase 2 ont guidé le processus de conception tant sur le choix du système constructif, l’écriture architecturale que la volumétrie générale. Un volume à gradins fait alors son apparition, un bâtiment « topographique » s’élève en strates découpées depuis le sol. L’architecture trouve son langage dans la trame de ses adjonctions successives.

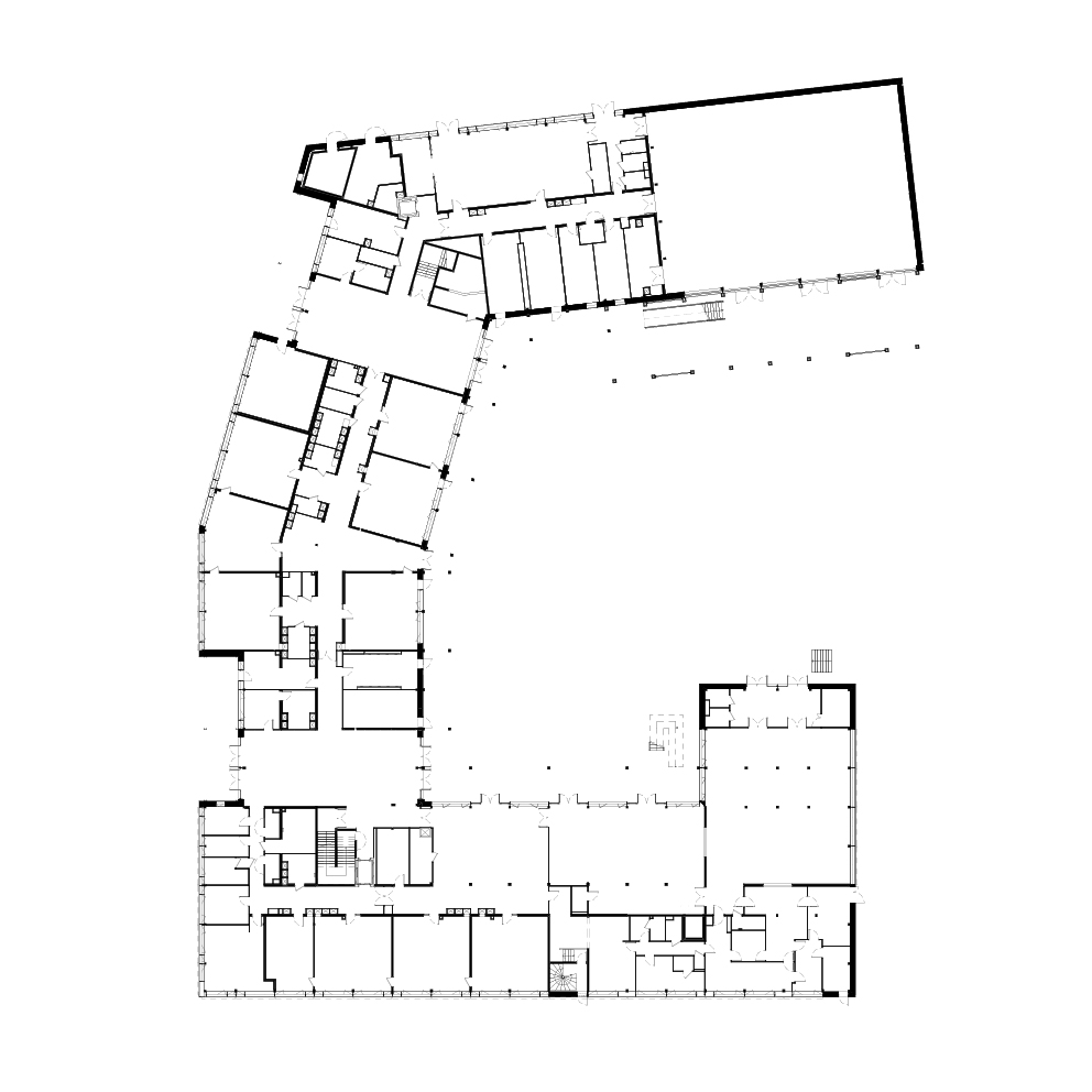
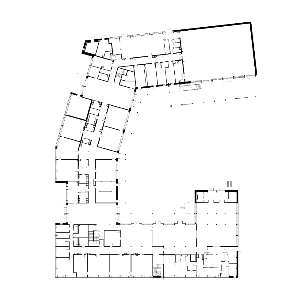
Le bâtiment adopte la forme d’un « U » ouvert à l’est, et distribue ses programmes au rez-de-chaussée selon la vocation des rues attenantes. Les écoles dans le corps central du bâtiment, sur la sente piétonne ; et dans les ailes, les espaces mutualisés (restauration et centre de loisirs) et les activités publiques (salle associative et gymnase). Côté parc, il prolonge le milieu naturel par sa cour en pleine terre, ses coursives bordées de jardinières et ses toitures végétalisées.

Si le bois a de très nombreuses qualités intrinsèques, son habilité à être associée à d’autres matériaux est remarquable. Ainsi pour la structure de grande portée du gymnase, nous dessinons des poutres treillis bois-acier. Pour le plancher, nous choisissons une solution solive bois-chape béton pour son inertie et son affaiblissement acoustique. Pour les façades, nous associons une ossature et un bardage bois à une isolation très efficace en botte de paille. Pour les partitions, nous remplissons la structure primaire avec des blocs de terre crue comprimés ou bien recoupons la maçonnerie de montant bois pour la rigidifier et faciliter l’accrochage dans les classes.

L’ensemble, qui recevra à terme 29 classes primaires plus des espaces de loisirs scolaires et périscolaires, se veut un modèle d’architecture contemporaine frugale et résiliente : priorité aux matériaux décarbonés, intégration ponctuelle d’éléments réemployés, dispositifs passifs de thermo-régulation (ventilation naturelle, puit climatique, protections solaires...), détails contribuant à la pérennité de l’ouvrage, évolutivité grâce à une structure poteau-poutre flexible.

MAÎTRISE D'OUVRAGE
Ville de Gennevilliers (92)
PHASE
En cours
COÛT
18.3 M€ (phase 1) + 3.2 M€ (phase 2)
SURFACE TOTALE
5 800 m² (phase 1) + 1 000 m² (phase 2)
PROGRAMME
Écoles maternelle et élémentaire (29 classes à terme), cantine scolaire, centre de loisirs, salle associative, gymnase
MAÎTRISE D'OEUVRE
Dumont Legrand architectes (mandataire)
MUZ (architecte associé)
Atelier Jours (paysage)
C&E ingénierie (structure)
SWITCH (CVC, thermique, environnement)
TCA (économie)
AVA (acoustique)
Gesbert (électricité)
ATEVE (vrd)
CLIC (cuisine)
Cap Exe (OPC)

Chefs de projet : Baptiste Brenguier, Antoine Chaignon

Crédits perspectives : Supervue