Maison de la petite enfance à Saint-Médard-en-Jalles
Saint-Médard-en-Jalles (33) _ Études

Nous sommes lauréats du concours de la maison de la petite enfance de Saint Médard en Jalles !

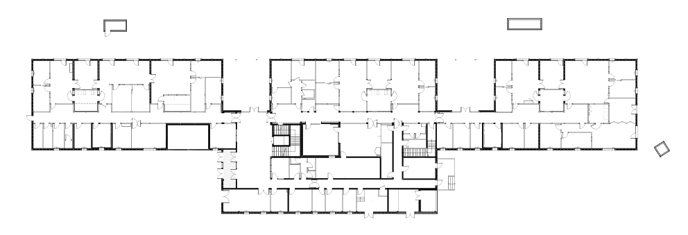
Cet équipement lié à l'enfance s’installe dans un beau parc boisé à la lisière de l’une des forêts de Saint-Médard-en-Jalles. Il prend place en vis-à-vis d’une maison pour personnes âgées et vise à favoriser le mélange des générations au sein d’un parc partagé.

Le mélange des générations et le soin porté aux plus jeunes, les éléments et la nature, sont les ingrédients fondateurs de notre projet.

Le bâtiment regroupe une crèche collective, un multi-accueil, une crèche familiale, un lieu d’accueil parents-enfants, un refuge petite enfance et le service petite enfance de la ville.

MAÎTRISE D'OUVRAGE
Commune de Saint-Médard-en-Jalles (33)
PHASE
En cours
COÛT
NC
SURFACE TOTALE
NC
PROGRAMME
Crèche collective, multi-accueil, crèche familiale, lieu d’accueil parents-enfants, refuge petite enfance, service petite enfance de la ville
MAÎTRISE D'OEUVRE
Dumont Legrand (architectes mandataires)
Fred Bonnet (VRD)
In Situe Ergonomie (ergonomie)
Rivière environnement (écologue)
Emacoustic (acoustique)
INEX (économie et OPC)
Ligne BE (structure)
Pollen Paysage
SCOP Ecozimut (fluides, thermique, environnement)

Chef.fe.s s de projet : Pierre Battaglia, Jeanne Olléon, Marion Caze

Crédit perspectives : byencore